Local associatif 𝗖𝗔𝗟
PROJET
Local de l’Association Droits et Habitats
Localisation : Paris 75018
Barbès Rochechouart
Montant des travaux : 116 000 € HT
Surface : 135 m²
Mission complète – Livré
Année : 2019-2020
ÉQUIPE
Maître d’ouvrage : Association Droits et Habitats
Maîtrise d’œuvre : FAIRE AVEC
Eclairagiste : Concepteurs Lumière Sans Frontière
Bureau de contrôle : BTP Consultants
Entrepreneur : Odéon SARL
CVC : Hydro-therm
Peinture : Coup d’Main
Agencement : Palam
Photographe : Eléonore Secondi
Présentation
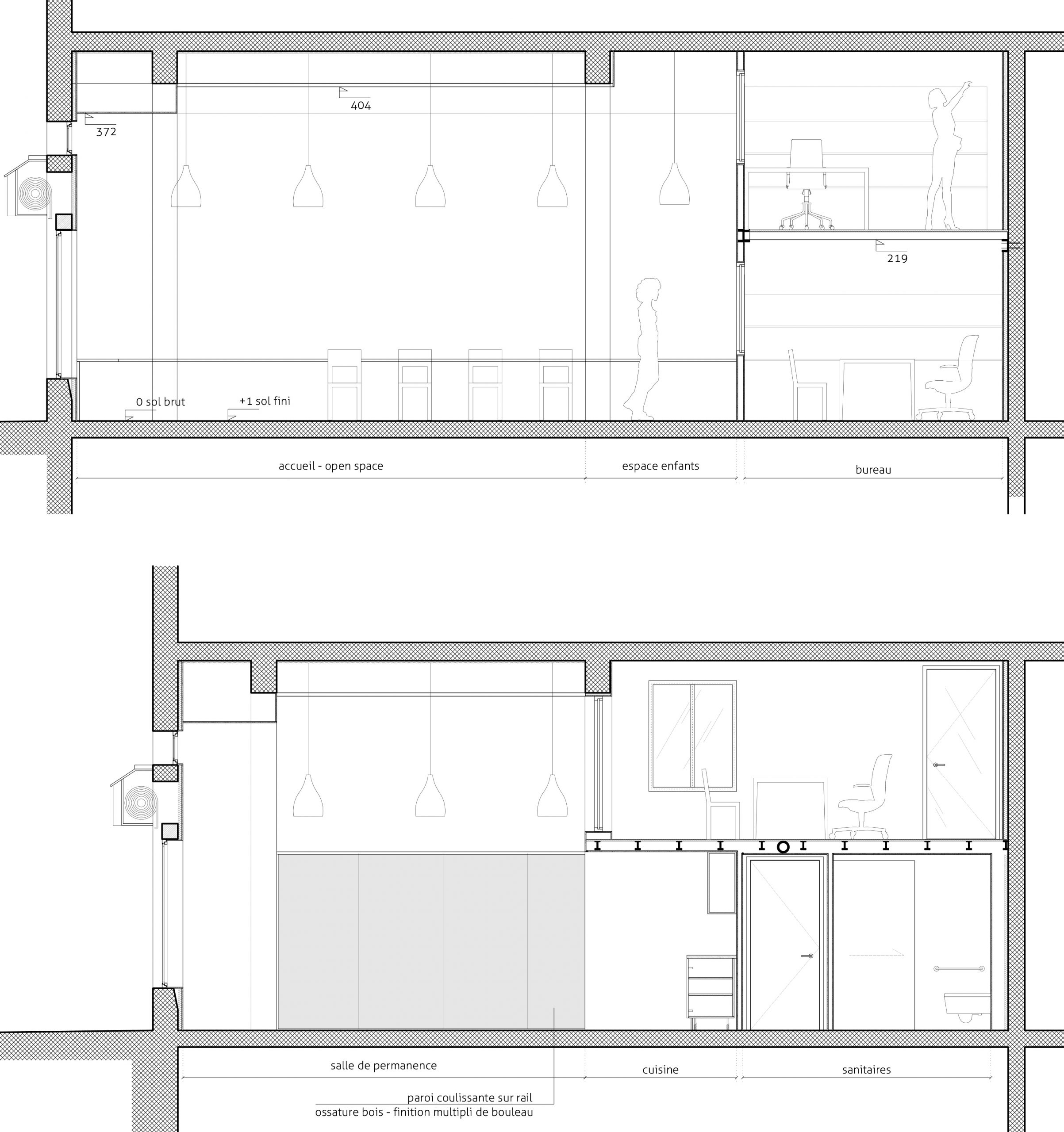
Située depuis sa création dans le quartier de la Goutte d’Or, l’association Droits et Habitat (anciennement CAL) a déménagé dans un local entièrement vide attribué par la Mairie de Paris. Le projet consistait à créer des bureaux fermés, ainsi qu’un espace ouvert pouvant accueillir les permanences de l’association. Cet pièce centrale devait pouvoir se transformer occasionnellement en salle de formation, ou un espace convivial de quartier. Ainsi, une grande porte sur mesure en bois permet de moduler l’espace selon le calendrier de l’association.
Un programme dense couplé à une belle hauteur sous plafond a été l’occasion de créer un étage complet, en rusant sur les épaisseurs de structure pour créer des volumes de travail intimes et confortables. Les bureaux, plus bas de plafond, s’ouvrent sur le grand volume intérieur, en créant une façade intérieure, d’où l’on peut discuter d’une fenêtre à l’autre.
la maîtrise d'ouvrage
Le chantier a été l’occasion d’expérimenter de nouveau la mise en œuvre de matériaux inexploités. Ainsi, l’ensemble des équipements sanitaires et lumineux, les revêtements de sol et les fenêtres intérieures ont été récupérés. De la récupération de matériaux émerge un espace aux finitions soignées. Le chantier a été riche d’échanges et de liens tissés au fil des réunions.
L’association Droits et Habitat (anciennement Comité Actions Logement), accompagne les personnes en situation de mal-logement. Les membres bénévoles et salarié•es de l’association tiennent des permanences et suivent les démarches administratives et juridiques liées au logement. Ils et elles luttent contre les expulsions et montent des dossiers DALO. Par voie administrative et juridique, Habitats et Droits participe à l’amélioration de l’habitat des personnes accompagnées.
SAUVÉS DE LA BENNE
+ Réemploi in situ :
1 ballon d’eau chaude (47 kilos)
+ Issus de déconstruction :
4 fenêtres intérieures (242 kilos)
3 portes vitrées (150 kilos)
2 armoires métalliques (50 kilos)
2 miroirs (15 kilos)
moquette (130 kilos)
2 WC (30 kilos)
2 lavabos / éviers (91 kilos)
acastillage (27.5 kilos)
+ Issus de surplus de fournisseurs / erreur de commande
carrelage et faïence (180 kilos)
ensemble des luminaires (310 kilos)